ABOUT
PROCESS
RESIDENTIAL SPACE
COMMERCIAL SPACE
PROPOSAL
PRESS
CONTACT
ABOUT
PROCESS
RESIDENTIAL SPACE
COMMERCIAL SPACE
PROPOSAL
PRESS
CONTACT
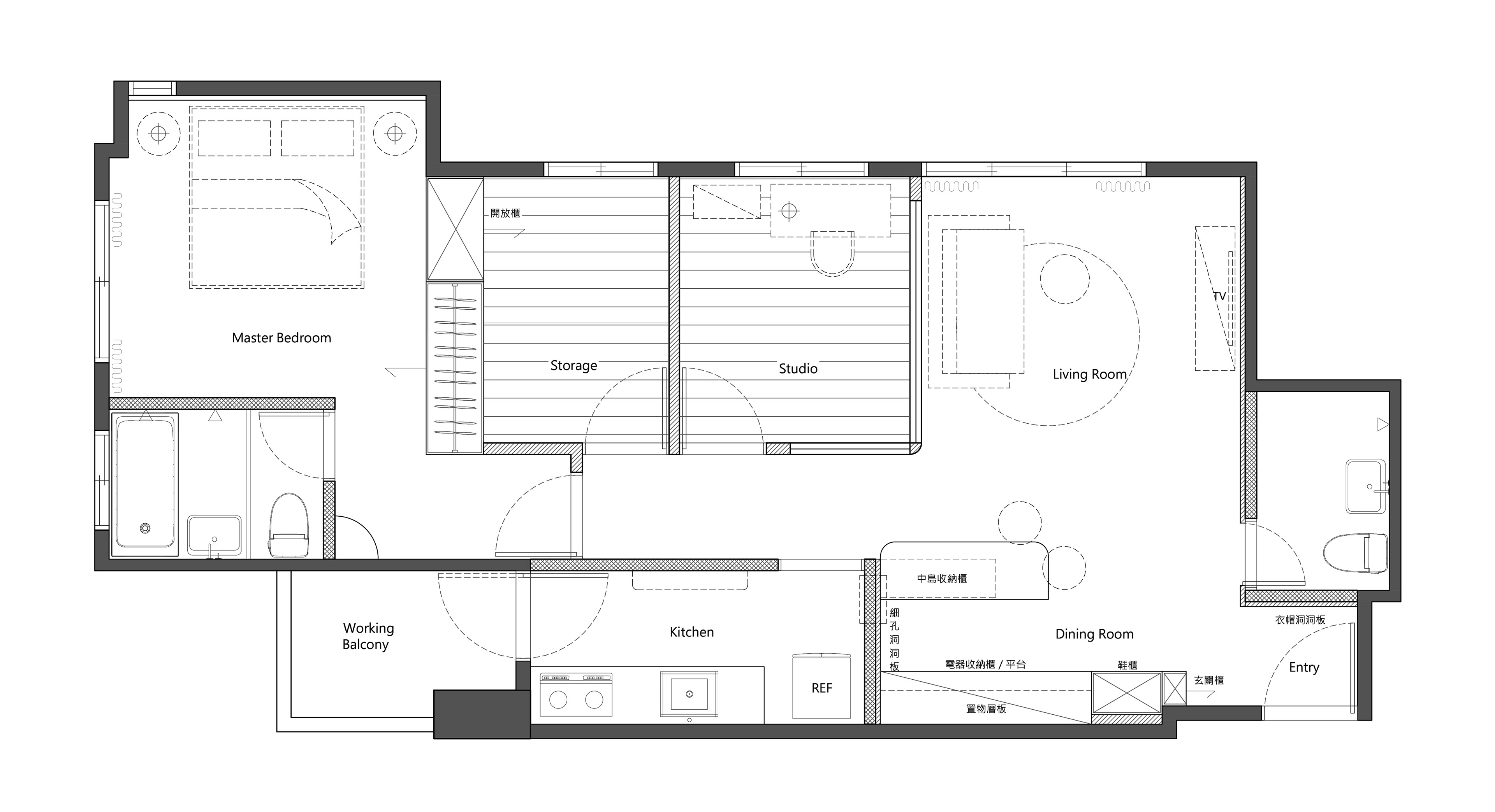
木.睦
Type |
住宅空間 RESIDENTIAL SPCAE
Location |
高雄
Materials |
木皮
、
烤漆
、
系統板
、小冰柱玻璃、進口瓷磚、超耐磨木地板
奶白與輕柔木紋
統一的相近色營造舒適空間氛圍
圓與弧弱化空間線條
在喧鬧城市裡的小住宅
不多不少 剛好
■
↑
Back to Top
在這裡插入 Cookie 橫幅的文稿。
接受
拒絕